Réalisation 105: Maison S – Maison de Maitre à Clairefontaine en Yvelines proche Rambouillet 78. ArchiDesign, c’est votre designer, maitre d’œuvre Constructeur de Maison Design Moderne Classique Mansard sur Clairefontaine en Yvelines et Rambouillet 78. Contactez nous pour votre projet de construction de maison dans les Yvelines au meilleur prix. Nous réaliserons votre devis de conception et construction. Phase: maison livrée.






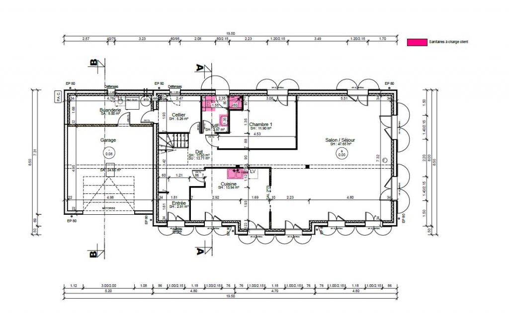
Découvrez ici quelques images des esquisses et plans de permis de construire ainsi que de notre construction en cours sur Clairefontaine en Yvelines dans le 78 . Une très belle réalisation ArchiDesign, votre designer constructeur de maison d’architecte haut de gamme, toit plat terrasse, 4 pans, 2 pans, au design moderne ou classique de maitre mansard ou style ile de france sur Clairefontaine en Yvelines 78 proche de rambouillet.







Découvrez nos services pour faire construire sur Clairefontaine en Yvelines (permis de construire & études, construction & suivi), nos métiers et nos zones d’intervention en France entière, ile de France, dans les Yvelines 78, Essonne 91, Hauts de Seine 92, Val de Marne 94, Seine et Marne 77, le val d-Oise 95,
ArchiDesign, depuis 10 ans, votre constructeur, maitre d’œuvre, architecte d’intérieur et designer sur Clairefontaine en Yvelines.
ArchiDesign est depuis plus de 10 ans votre Designer Maitre d’œuvre et Constructeur de maison design en brique, ossature bois ou parpaing sur mesure style architecte sur Clairefontaine en Yvelines. Avec des centaines de réalisations, nous réalisons plan, permis de construire et / ou construction de A à Z pour toute construction, rénovation, extension, surélévation, écologique moderne ou traditionnelle de maison, bureau, cabinet médical, et immeuble collectif en contrat CCMI ou contractant général en brique, bois ou parpaing sur Clairefontaine en Yvelines.
Nous travaillons pour tout particulier, architecte, maitre d’œuvre ou professionnel et si vous avez déjà le permis nous réaliserons avec plaisir uniquement la construction pour toute maison toit plat, 4 pans, mansard, zinc, de maitre, bardage bois ou parement pierre. Recevez votre devis gratuit à un prix compétitif et votre premier plan rapidement pour votre extension ou construction de maison ou bureau sur Clairefontaine en Yvelines.
Avec ArchiDesign, vous choisissez une entreprise ayant pignon sur rue, depuis plus de 10 ans, cumulant des centaines de réalisations, et solide financièrement avec un capital social de plus de 100 000 euros. Nous présentons aussi une assurance décennale chez un assureur notoirement reconnu et des garanties solides.
Terrain à bâtir, étude de sol, plan de géomètre, permis de construire sur Clairefontaine en Yvelines
Nous réalisons toute recherche de terrain à bâtir à vendre sur Clairefontaine en Yvelines, toute étude de sol G2 par bureau d’étude géotechnique sur Clairefontaine en Yvelines, tout relevé et plan de géomètre sur Clairefontaine en Yvelines, tout permis de construire ou déclaration préalable sur Clairefontaine en Yvelines.
Nous intervenons comme maitre d’œuvre sur Clairefontaine en Yvelines, constructeur de maison sur mesure d’architecte sur Clairefontaine en Yvelines, architecte d’intérieur sur Clairefontaine en Yvelines.
Constructeur maison toit plat terrasse, 4 pans, mansard, moderne, d’architecte sur Clairefontaine en Yvelines
Nous sommes ainsi concepteur et constructeur de maison moderne, design ou contemporaine, ou maison traditionnelle, maison toit plat toiture terrasse, maison 4 pans, maison mansard, maison zinc ou bac acier, maison cubique, maison bardage bois et parement pierre, ou encore maison de maitre sur Clairefontaine en Yvelines.
Nous sommes ainsi votre designer et constructeur de maison bois, maison brique, maison en parpaing, maison en ossature métallique ou maison modulaire et maison container Clairefontaine en Yvelines.
Constructeur extension maison bois ou brique sur Clairefontaine en Yvelines, Rénovation et Restructuration de maison ou bureau sur Clairefontaine en Yvelines
ArchiDesign avec ses équipes réalise votre extension ou votre rénovation de maison ou bureau clé en main sur Clairefontaine en Yvelines. Nous intervenons comme concepteur et constructeur. Prenez contact.
Découvrez notre savoir faire en extension bois, extension écologique, extension sur mesure d’architecte, extension toit plat et surélévation de maison sur Clairefontaine en Yvelines.
Nous aussi de vraies spécialités comme constructeur de surélévation de maison architecte et maitre d’oeuvre, surélévation maison ossature bois ou zinc, surélévation moderne design sur mesure haut de gamme, surélévation maison toit plat toiture terrasse, ou encore extension et surélévation de maison mansard mansart ou 4 pans et à chaque fois nous réalisons biensûr une étude structure par un bureau d’étude structure pour votre surélévation sur Clairefontaine en Yvelines.
En rénovation nous développons de nombreux savoir faire et notamment la rénovation par architecte, la rénovation de maison meulière mansard et ancienne, la création de loft par transformation rénovation de grange, ferme, local et bâtiment industriel ou commercial, les solutions pour aménager son sous-sol et tout aménagement de cave en habitable, la restructuration, rénovation et transformation de bureau ou local commercial en habitation, location ou résidence étudiante, la réalisation d’un aménagement de combles, ou encore la création d’un appartement, studio ou cabinet libéral, médical ou bureau de réception dans une maison sur Clairefontaine en Yvelines.
Constructeur, agenceur, contractant général et entreprise générale pour bureau, cabinet médical, ERP sur Clairefontaine en Yvelines
Découvrez aussi notre savoir faire comme constructeur, rénovateur, agenceur, contractant général aussi notre savoir-faire en conception et ou surtout en construction, pour la construction, rénovation, extension, agencement, surélévation, transformation de bureau, cabinet médical (maison médicale, cabinet libéral, cabinet dentiste, cabinet vétérinaire,…), cabinet de professions libérales (notaire, expert-comptable, consultant), commerce, locaux commerciaux,
Nous assurons aussi la construction rénovation restructuration et tout permis de construire et déclaration préalable comme contractant général pour tout bureau et bâtiment et local industriel, commercial, d’activité ou logistique sur Clairefontaine en Yvelines. Nous travaillons aussi régulièrement sur la construction ou rénovation de hangar agricole et grange sur Clairefontaine en Yvelines.
Devis pour construction de maison, extension ou rénovation sur Clairefontaine en Yvelines
Recevez votre devis pour la construction de maison, extension ou rénovation de maison ou bureau sur Clairefontaine en Yvelines en 24/48H. Prenez contact.
Découvrez d’autres références de projet de construction sur Clairefontaine en Yvelines
Découvrez l’univers ArchiDesign à proximité de Clairefontaine en Yvelines
Découvrez tous nos modèles et designs: constructeur maison toit plat, construction maison 4 pans moderne, plan et modele maison mansard, maison patio, maison bardage bois, construction maison parement pierre, maison style ile de France, maison a étage moderne, maison comble design, plan et modele maison de plain-pied contemporaine, plan maison en L, maison en H, plan maison en U, maison en V, maison toit en zinc, maison avec vide sur séjour ou séjour cathédrale, constructeur maison modulaire containeur, maison longere et grange moderne. Découvrez nos maisons sur mesure, constructeur maison haut de gamme, construction maison d’architecte.
Apprenez en plus sur nos prix et devis : devis et prix d’un permis de construire ou d’une déclaration préalable, le devis et prix construction maison sur mesure architecte, devis et prix construction maison toit plat terrasse, prix construction immeuble, prix extension maison, prix maison bois, prix maison écologique, prix architecte et maitre oeuvre.
Nous sommes votre constructeur de maison architecte, extension et rénovation en France entière, constructeur de maison architecte extension et rénovation en ile de France, constructeur de maison architecte extension et rénovation dans les Yvelines 78, constructeur de maison architecte extension et rénovation en Essonne 91, constructeur de maison architecte extension et rénovation Hauts de Seine 92, constructeur de maison architecte extension et rénovation Val de Marne 94, constructeur de maison architecte extension et rénovation Seine et Marne 77, constructeur de maison architecte dans le val d-Oise 95





