Réalisation 223: la Maison SF est une maison 4 pans moderne design avec une terrasse arrière et de multiples décroches sur Nanterre dans les Hauts de Seine 92. Maison livrée. ArchiDesign a été retenu par ses clients grâce à la qualité de sa proposition architecturale et son très bon positionnement prix pour le permis de construire et la construction de cette maison à Nanterre. Nous intervenons régulièrement commedesigner, architecte d’intérieur et constructeur de maisons dans les hauts de seine 92. Notre signature est biensûr une conception sur mesure dans tous les styles et un budget maitrisé très en amont grâce à l’intégration conception et construction et au contrat de construction de maison individuelle et ses garanties. Phase permis obtenu, chantier en cours.









Depuis plus de 12 ans, ArchiDesign réalise chaque année en France 50 maisons d’exception dans la plus grande qualité et au meilleur prix avec des garanties solides notamment comme designer et constructeur dans les Hauts de Seine 92 de maison sur mesure à Nanterre par exemple. Découvrez nos réalisations ou nos modèles ou prenez contact.



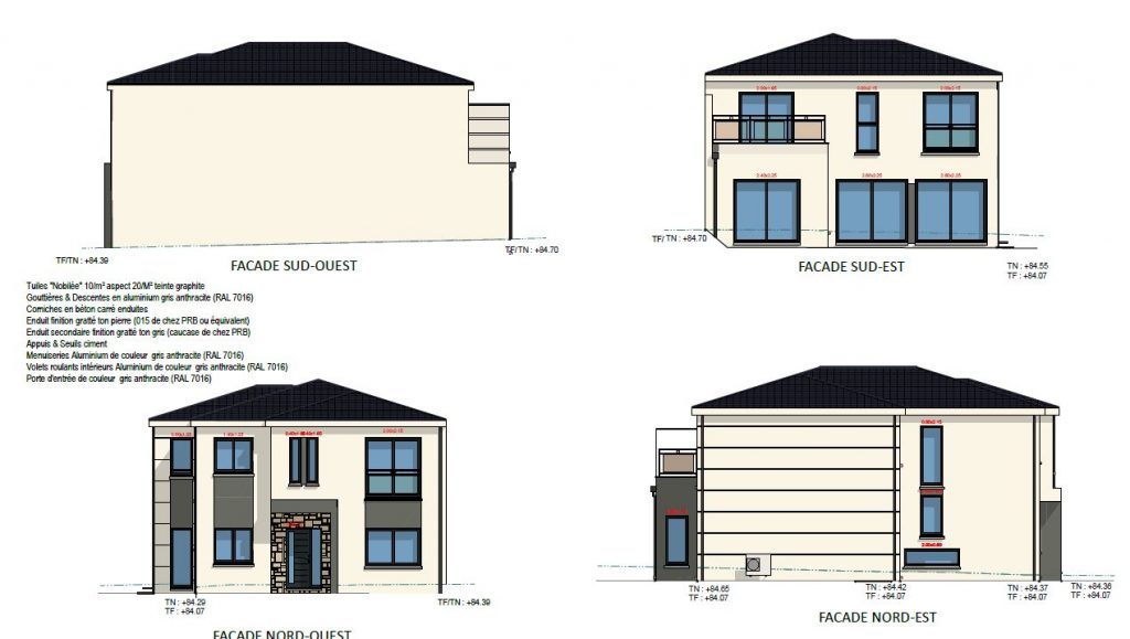
Une maison particulièrement écologique à Nanterre dans les Hauts de Seine.
La maison que nous avons conçue répond à des normes au delà de la RE 2020 grâce à une isolation très performante, un vitrage de qualité, et des énergies renouvelables. La maison consommera ainsi en prévision très peu d’énergie. Aux côtés de nos clients nous démontrons ainsi notre capacité à être un designer, architecte d’intérieur et constructeur de maison écologique voir passive.
Le sur mesure à tous les niveaux.
Nous avons réaliser les plans, 2D, 3D de cette maison à Nanterre 100% sur mesure en partant d’une page blanche pour s’adapter à la fois au souhait de notre client et aux possibilités du terrain et du plan local d’urbanisme.
Une construction haut de gamme avec des matériaux et artisans de qualité.
Grâce à des équipes avec qui nous travaillons depuis longtemps et un suivi de travaux efficace, ainsi qu’un choix de matériaux noble, nos réalisations sont résolument haut de gamme.
ArchiDesign votre designer et constructeur sur mesure écologique.
Résolument tournés vers l’avenir, utilisant à la fois des techniques éprouvés et innovantes, nous sommes votre partenaire fiable pour une construction de maison haut de gamme, écologique et sereine. Avec des dizaines de réalisations chaque année, ArchiDesign vous accompagne de toute son expertise.
Au meilleur prix
Nous proposons la construction de maison toit plat ou encore 2 pans au meilleur prix grâce à des économies d’échelle et des partenariats long terme avec nos artisans pour arriver au meilleur prix. De même nos prix de conception et permis de construire sont très raisonnables. Consultez nous pour recevoir un devis pour votre construction.
Découvrez ArchiDesign partenaire de votre construction sur Nanterre
Choisissez un constructeur et entreprise générale de construction solide sur Nanterre
Avec ArchiDesign, vous choisissez une entreprise ayant pignon sur rue, depuis plus de 10 ans, cumulant des centaines de réalisations, et solide financièrement avec un capital social de plus de 100 000 euros. Nous présentons aussi une assurance décennale chez un assureur notoirement reconnu et les garanties du contrat de construction de maison individuelle ou du contractant général sur Nanterre. ArchiDesign intègre comme maitre d’œuvre et constructeur sur Nanterre une direction technique solide, des ingénieurs d’affaires designer diplômés, un bureau d’étude d’exécution et des conducteurs de travaux. ArchiDesign réunit aussi tous les artisans et entreprises de bâtiment terrassier, maçon, charpentier, couvreur, enduiseur, menuisier, plaquiste, électricien, plombier chauffagiste, carreleur, peintre utiles à votre projet de construction ou rénovation ou extension de maison sur Nanterre. Découvrez une équipe solide, expérimentée et diplômée à votre service.
Choisissez votre style et votre matériaux de construction
Choisissez votre style de construction de maison. Nous sommes ainsi concepteur et constructeur de maison moderne, design ou contemporaine, ou maison traditionnelle, maison toit plat toiture terrasse, maison 4 pans, maison mansard, maison zinc ou bac acier, maison cubique, maison bardage bois et parement pierre, ou encore maison de maitre sur Nanterre. Choisissez votre matière de construction. Nous sommes ainsi votre designer et constructeur de maison bois, maison brique, maison en parpaing, maison en ossature métallique ou maison modulaire et maison container sur Nanterre. En tant que concepteur et constructeur sur mesure, vouschoisissez aussi toutes vos options sur mesure dans les matériaux, équipements, revêtements design et écologie de votre maison, bureau ou cabinet.
Découvrez nos références de construction à proximité sur Nanterre
ArchiDesign c’est des centaines de réalisations en construction, rénovation, extension surélévation sur Nanterre et de nombreux chantiers visitables. Prenez RDV pour en savoir plus et lancer votre projet. Découvrez une sélection de réalisations.
Construction, Permis de construire, déclaration préalable, relevé, étude de faisabilité et maitrise d’œuvre sur Nanterre.
Nous vous accompagnons dans la conception et ou dans la construction de votre maison. Si vous avez déjà les plans nous réaliserons uniquement la construction. Nous pouvons aussi réaliser une mission complète conception construction faisant aboutir chaque phases de votre projet: étude de faisabilité, esquisse, avant-projet, relevé de l’existant, étude de sol G2 par bureau d’étude géotechnique, plan de géomètre, étude thermique pour votre permis de construire ou votre déclaration préalable sur Nanterre au meilleur prix sur devis. Découvrez nos savoir faire en permis de construire, et maitrise d’oeuvre et construction ou encore en terme d’étude de sol G2 pour construction de maison.
Votre plan de géomètre, votre étude de sol sur Nanterre.
ArchiDesign vous met en relation avec ses partenaires et vous assiste vis-à-vis de ces partenaires comme assistant à maitrise d’ouvrage. Ainsi notre géomètre expert sur Nanterre partenaire pourra réaliser vos plans de terrains, avec altimétrie voir détection des réseaux existant ou encore votre projet ou plan de division de terrain en déclaration préalable ou permis d’aménager sur Nanterre. Notre bureau d’étude de sol type étude de sol G2 ou encore G5 en zone carrières sur Nanterre pourra avec ses ingénieurs géotechniciens définir les fondations décisives au succès de votre maison en construction rénovation extension ou surélévation. Notre bureau d’étude structure pour construction, extension surélévation sur Nanterre pourra parfaitement définir les éléments structurels de votre maison et garantir sa pleine solidité. Notre notaire partenaire sur Nanterre pourra vous conseiller comme tout notaire dans votre promesse de vente ou d’achat pour définir les bonnes conditions de votre achat de de terrain sur Nanterre.
Acheter un terrain à vendre à bâtir sur Nanterre.
Nous vous accompagnons sur la recherche d’un terrain à vendre à bâtir sur Nanterre et avons régulièrement des terrains disponible pour réaliser une maison style architecte avec archidesign. Voici une sélection de nos offres. Contactez nous, nous rentrons chaque semaine des biens souvent off market que nous n’affichons pas sur le site.
Permis de construire, déclaration préalable, relevé, étude de faisabilité et maitrise d’œuvre sur Nanterre.
En plus de la construction clé en main, hors d’eau hors d’air ou prêt à finir, nous vous accompagnons à toutes les phases de votre projet: étude de faisabilité, esquisse, avant projet, relevé de l’existant, étude de sol G2 par bureau d’étude géotechnique, plan de géomètre, étude thermique pour votre permis de construire ou votre déclaration préalable sur Nanterre au meilleur prix sur devis. Découvrez nos savoir faire en permis de construire, et maitrise d’oeuvre et construction ou encore en terme d’étude de sol G2 pour construction de maison.
Devis et plan en 24H pour votre maison neuve sur mesure au meilleur prix.
Pour faire construire votre maison a un prix de construction compétitif, ArchiDesign vous transmet en 24/72H un devis pour construction maison sur Nanterre précis et très bien placé. Nous serons aussi heureux de vous remettre un devis pour extension surélévation ou rénovation sur Nanterre au meilleur prix. Grâce à un volume d’achat important tout en visant l’excellente, nous vous offrons des maisons d architecte, ou encore construction ou rénovation de bureau et cabinet médical et de constructeur à des tarifs placés pour un budget tout compris optimal.
Construction, extension, surélévation et rénovation de maison ou bureau clé en main sur Nanterre
ArchiDesign est votre designer, architecte d’intérieur, constructeur, réalisateur de toute rénovation, extension, surélévation de maison, ou bureau ou encore cabinet médical et immeuble collectif en brique, ossature bois, ou ossature métallique sur Nanterre. Nous réalisons aussi toute construction, extension ou surélévation hors d’eau hors d’air, prêt à finir, clé en main sur Nanterre. Rencontrez un de nos experts gratuitement.
ArchiDesign avec ses équipes réalise votre extension ou votre rénovation de maison ou bureau clé en main sur Nanterre. Nous intervenons comme concepteur et constructeur. Prenez contact.
En plus de la construction, nous sommes des spécialistes en tant que designer, architecte d’intérieur, constructeur et entreprise générale TCE, de tout garage, studio de jardin, piscine, extension surélévation et agrandissement de maison en ossature bois ou brique ou parpaing sur Nanterre du permis de construire à la livraison clé en main. Découvrez notre savoir faire enextension bois, extension écologique, extension sur mesure d’architecte, extension toit plat et surélévation de maisonsur Nanterre. Nous réunissons des artisans dans tous les corps d’état, en entreprise générale, maçon et entreprise de maçonnerie, électricien, couvreur, entreprise ossature bois et bardage bois, menuisier pour vos fenêtres, plaquiste, carreleur, cuisiniste de qualité haut de gamme et sur mesure sur Nanterre.
Entreprise générale de rénovation ou restructuration de maison et bureau sur Nanterre
Nous assurons aussi la conception, la restructuration, la rénovation de votre maison ou bureau sur Nanterre tous corps d’état en entreprise générale y compris l’ouverture de porteur et la pose d’un IPN tout comme la rénovation énergétique de votre maison. Découvrez aussi notre savoir faire en rénovation, rénovation énergétique, création de salle de bain, cuisine, bureau, pièce, notre savoir en rénovation d’architecte sur mesure haut de gamme et nos prix de rénovation sur Nanterre.
Constructeur de bureau et cabinet médical sur Nanterre
Nous apportons en tant que constructeur, rénovateur, agenceur, contractant général aussi notre savoir-faire en conception et ou surtout en construction, pour la construction, rénovation, extension, agencement, surélévation, transformation de bureau, cabinet médical (maison médicale, cabinet libéral, cabinet dentiste, cabinet vétérinaire,…), cabinet de professions libérales (notaire, expert-comptable, consultant), commerce, locaux commerciaux, bâtiment d’activité ou industriel, pour TPE, PME ou start up sur Nanterre. Découvrez notre savoir faire pour la construction, rénovation et agencement de bureau.
Constructeur de maison pour investisseur et bailleur et immeuble collectif sur Nanterre.
Archidesign réalisation en tant que designer, architecte d’intérieur et constructeur, la construction, la rénovation, la transformation, de maisons bifamiliale ou multifamiliale, villa-duplex, maison duplex, maison avec cabinet libéral ou médical ou de praticien, maison avec appartement indépendant, colocation, petit et grand immeuble collectif locatif résidentiel avec par exemple des studios, résidence service étudiante ou jeune professionnel, programmes de maisons pour promoteur ou bailleur sur Nanterre.
Votre maison d’architecte sur mesure tous styles sur Nanterre
ArchiDesign c’est la marque du Design. Nous réalisations des extensions et des constructions dans tous styles. Ainsi vous pouvez nous sommes votre constructeur de maison d’architecte sur mesure haut de gamme sur Nanterre. Vous pouvez nous confier l’architecture et la construction de votre maison d’architecte sur mesure haut de gamme en toit plat ou toiture terrasse, ou encore 4 pans, mansart, en tuile, en ardoise ou zinc sur Nanterre. Vous pourrez ainsi réaliser avec ArchiDesign votre maison neuve design, moderne, contemporaine ou classique avec tous types de parements bardage bois, maison parement pierre, végétalisation, enduit, zinc. Découvrez des exemples de nos savoir faire commeconstructeur de maison toit plat, de maison d’architecte, agence de design et de construction de maison moderne 4 pans, bâtisseur de maison de plain pied, de villa à étage ou de demeure avec comble et notre sens de la construction maison haut de gamme et du faire construire sur mesure.
Une maison écologique, passive et bioclimatique sur Nanterre
Nous construisons des maisons résolument écologiques dépassant la RE 2020. Nous assurons ainsi conception et construction de votre maison écologique, passive, bioclimatique, voir positive, naturelle et autonome. Nous intégrons dans nos bâtiments des isolant naturels performant, des énergies renouvelables, et d’autres solutions: VMC double flux, puits canadien, récupérateur d’eau de pluie… Tout cela est certifié par un bureau d’étude thermique spécialisé. Découvrez nos articles dédiés comme constructeur de maison passive, spécialiste de la construction de maison naturelle, entreprise de maison autonome, ou encore concepteur de maison bioclimatique et biensûr constructeur de maison écologique sur mesure a minima RE 2020.
La construction de maison écologique bioclimatiqueRE 2020 ou passive est un de nos points forts sur Nanterre. Fort d’une équipe cumulant des dizaines d’années d’expérience, de nombreuses références locales et d un savoir faire unique en conception, plan, permis de construire et construction de maisons, nous sommes à votre disposition.
Nous sommes constructeur de maison écologique, passive, positive voir autonome , naturelle et solaire sur Nanterre. Nous travaillons ainsi tous les éléments de votre maison comme l’orientation, les isolants, les énergies renouvelables et nous adossons toute nos préconisations à l’expertise d’un bureau d’étude thermique spécialisé pour votre construction, extension ou rénovation.
Le prix de votre construction de maison sur Nanterre
Le prix de construction d’une maison sur Nanterre varie entre 1500 et 2500 euros par m².
Le cout de la maison va dépendre de son architecture, de la complexité du chantier et du terrain, des options intérieures et extérieures, des surfaces, du niveau écologique visé sur Nanterrepour votre maison sur mesure d’architecte.
Apprenez en plus sur nos designs et les prix dans la construction.
Nous vous proposons un prix de construction et de permis de construire compétitif sur Nanterre
Nous chiffrons tout terrain, maisons, frais annexes taxe d’aménagement. Apprenez en plus sur le prix construction d’une maison toit plat, le budget pour faire construire une maison sur mesure d’architecte, le tarif d’un constructeur pour une maison écologique sur Nanterre.
Constructeur en CCMI sur mesure de maison d’architecte sur Nanterre
Nous sommes votre constructeur de maison neuve sur mesure sur Nanterre. Nous réalisons la construction de votre maison dans le cadre du contrat de construction de maison individuelle ou CCMI avec les meilleures garanties (garantie de livraison à prix et délai convenu), garantie décennale…. et surtout la garantie de nos nombreuses références visitables et clients satisfaits. Nous réalisons aussi parfois nos maisons dans le cadre d’un contrat type entreprise générale pour la construction de maison ou contractant général sur Nanterre.
Maître d’œuvre sur Nanterre
Nous sommes maître d’œuvre sur Nanterre de votre construction de maison sur mesure type architecte et pilotons la construction de A à Z. Nos prix sont tout compris : construction + maîtrise d’œuvre. Vous avez un seul interlocuteur.
Architecte sur Nanterre
Nous intervenons aussi pour la conception de votre maison comme designer et architecte d’intérieur sur Nanterre. Nous réalisons toutes les phases : Faisabilité, Esquisse, Avant Projet Définitif, et Dépôt de permis de construire en partenariat avec un architecte diplômé d’état sur Nanterre.
Si vous avez déjà l’architecte ou si vous êtes architecte, nous intervenons uniquement pour la construction.
Plans et permis de construire et construction pour votre maison sur Nanterre.
Nous nous occupons dès la première esquisse de vos plans de maison design sur Nanterre. Nous déposons aussi votre permis de construire avec toutes ses pièces jointes. En tant que constructeur de maison, nous réalisons à la fois les plans de votre permis de construire et votre construction jusqu’à sa livraison ou Nous pouvons aussi vous aider dans la recherche de votre terrain à bâtir et de votre financement pour votre projet de construction. Nous vous conseillons aussi à toutes les étapes avec bienveillance et expertise.
Une excellente maîtrise de votre PLU, POS, RNU ou ABF, architecte du parc naturel et de la vallée sur Nanterre
Les équipes ArchiDesign sont des spécialistes du plan local d’urbanisme de votre ville, de son plan d’ occupation des sols, de l’éventuel OAP (opération d’aménagement programmé) dont vous feriez parti. Nous le lirons avec vous et vous expliquerons ce que vous pouvez construire. De même nous rencontrons au besoin l’architecte des bâtiments de France sur Nanterre ou du parc naturel ou de la vallée si votre projet de construction est concerné.
De très bonnes relations avec les mairies et communautés de communes ou agglomération sur Nanterre
Pour votre permis de construire et votre construction, nous entretenons les meilleures relations avec les mairies et communautés de communes ou agglomération
Construire sur un lotissement sur Nanterre
Si vous avez ou souhaitez un terrain à bâtir dans un lotissement, nous vous accompagnerons avec plaisir dans votre projet. Nous connaissons la majorité des lotissements et des lotisseurs sur Nanterre, tous les cahiers des charges et règlement de lotissement utiles à la construction de votre maison.
Construire sur un terrain à bâtir issu d’une division parcellaire sur Nanterre
Votre projet de construction est sur un terrain à bâtir issu d’une division foncière ? Nous serons heureux de vous accompagner aussi.
Votre constructeur de maison ossature bois, brique monomur ou parpaing sur Nanterre
Nous sommes votre constructeur de maison ossature bois, brique monomur ou parpaing sur Nanterre. Découvrez notre savoir faire en construction de maison ossature bois et ou en brique haute performance.
Nous intégrons aussi dans votre construction des isolants naturels comme la ouate de cellulose ou la fibre ou laine de bois. Nous sommes aussi des spécialistes des bureaux, des cabinets et de la maison bardage bois ou parement pierre.
Votre maison bois, ossature bois, brique monomur, zinc, bloc béton, béton cellulaire, siporex, ou parpaing sur Nanterre
Maisons ArchiDesign utilise tous les types de matériaux et peut donc vous accompagner comme constructeur et entreprise générale sur tous vos projets de construction extension ou surélévation de maison bois, ossature bois, ossature metallique, brique monomur, zinc, bloc béton à bancher, béton cellulaire, siporex, ou parpaing isolant sur Nanterre. Nous réunissons designers, constructeurs, architectes et maître d’œuvre autour de votre projet. Faîtes appel à un spécialiste avec de nombreuses références en la matière.
Rénovation, restructuration, aménagement et extension de maison et bureau et cabinet médical sur Nanterre
Nous sommes votre constructeur et entreprise générale pour toute construction, rénovation, restructuration, extension, transformation ou surélévation de maison médicale, cabinet médical, bureau, cabinet notarial commerce, zone commerciale sur Nanterre à prix compétitif sur devis en 48/72H..
Constructeur de Maison toit plat moderne d’architecte sur Nanterre
Pour votre maison à toiture terrasse ou cubique, votre designer archidesign, vous fera plusieurs propositions d’architectures, de plans intérieurs 2D, 3D, visuels. Toiture plate, toiture végétalisée, toiture en bac acier, toit plat béton ou toit plat bois… nous maîtrisons toutes les techniques de construction pour votre maison de rêves cube sur Nanterre.
Construction de Maisons 4 pans design sur Nanterre
Les toitures 4 pans permettent de concilier modernité et intégration dans le territoire. ArchiDesign c’est votre constructeur de maison 4 pans sur Nanterre.
Maison mansard sur Nanterre
Vous avez un projet de maison mansard ou maison de maître sur Nanterre. ArchiDesign est un spécialiste des codes architecturaux de la maison mansard avec des charpentes traditionnelles, des toits en zinc, des terrassons adaptés, des corniches moulurées, des effets d’enduit, des fenêtres cintrées, etc.
Maison d’architecte sur Nanterre
ArchiDesign c’est la maison d architecte à prix placé. Que vous ayez ou non votre architecte ou que vous souhaitiez faire appel à nos designers pour ce faire, nous serons heureux de construire votre maison.
Maison loft et patio sur Nanterre
Les lofts et les patios sont des formes de maisons que nous affectionnons particulièrement pour faire entrer la lumière dans nos maisons. Nous concevons avec vous les plans et visuels de votre future construction.
Maison traditionnelle ou bardage bois ou pierre sur Nanterre
Chez ArchiDesign nous avons plaisir à utiliser tous les matériaux : brique, parpaing, béton, bois, pierre… en bardage ou parement, nous saurons habiller avec style votre maison.
Toutes les formes de maison en L, en U, en H sur Nanterre
Maison en L, en U en H, en V, votre constructeur ArchiDesign choisi la forme de votre maison en fonction de votre cahier des charges et du terrain.
Maison à étage, de plain pied ou avec combles amenagés ou aménageables sur Nanterre
Que vous soyez intéressé par la construction d’une maison à étage, de plain pied ou avec combles amenagés ou aménageables, nous vous accompagnons.
L’amour de la maison design, moderne et contemporaine sur Nanterre
Quelque soit votre projet, nous sommes des amoureux, des maisons designs, modernes et contemporaines sur Nanterre. Nous marions avec plaisir, tradition, respect des lieux et architecture inscrit dans la modernité.
Nos artisans, passionnés du travail bien fait sur Nanterre: terrassier, maçon, plaquiste, menuisier, plombier, électricien, charpentier, couvreur, étancheur, domoticien, carreleur…
Chez Maisons ArchiDesign nous travaillons avec nos artisans amoureux du travail bien fait et fiers de leur construction de maison. Et notre constructeur collabore depuis dix ans en moyenne avec chacun de nos terrassiers, maçons, charpentiers, couvreurs, étancheurs, menuisiers, électriciens, domoticiens, plombiers, carreleurs, peintres… sur Nanterre. Ainsi sur Nanterre nous avons toutes les équipes pour réaliser votre projet complet : raccordements (et viabilisation et frais annexes, eau, gaz, électricité, puisard, tout à l’égout et assainissement individuel…), terrassements et remblai, maçonnerie et élévation de votre maison, ossature bois, charpente et couverture, étanchéité de toit terrasse et toiture plate, électricité et domotique, chauffage et plomberie, menuiseries et escaliers, carrelage, peinture… Le tout avec des équipes qui ont l’habitude de travailler ensemble et qui progressent ensemble. C’est le gage de la réussite de votre projet. Nous déployons ainsi avec succès votre projet.
Comment faire construire votre maison sur Nanterre : Les étapes de votre projet de construction
La passion du travail bien fait, l’expertise et la bienveillance pour la réussite de votre projet de construction sur Nanterre
Nous mettons au cœur de notre démarche :
- L’amour du travail bien fait,
- l’expertise
- la bienveillance
- pour la réussite de votre projet.
Contactez nous pour votre projet, nous serons heureux d’y contribuer
Découvrez notre univers et nos zones d’intervention
Nous sommes votre constructeur de maison architecte, extension et rénovation en France entière, constructeur de maison architecte extension et rénovation en ile de France, constructeur de maison architecte extension et rénovation dans les Yvelines 78, constructeur de maison architecte extension et rénovation en Essonne 91, constructeur de maison architecte extension et rénovation Hauts de Seine 92, constructeur de maison architecte extension et rénovation Val de Marne 94, constructeur de maison architecte extension et rénovation Seine et Marne 77, constructeur de maison architecte dans le val d-Oise 95





